Om Oss  
 
Prosjekt  

 
På tegnebordet  
 

Lavenergiboliger/passivhus

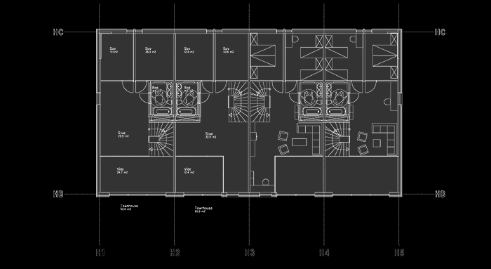
Bodø Panorama blokk H
Prosjektoppgave Lavenergiboliger og passivhus 2005 - 2006

www.bodopanorama.no

Blokk H
Bodø Panorama blokk H
Bodø Panorama blokk H
Bodø Panorama blokk H
Bodø Panorama blokk H
Bodø Panorama blokk H
Bodø Panorama blokk H
Bodø Panorama blokk H
Bodø Panorama blokk H
Bodø Panorama blokk H