Boliger
Lavenergiboliger
Hytter
Industri
Kontor og forretningsbygg
Undervisninsgbygg, skoler og barnehager
Helsebygg
Rehabilitering/ombygging
Prosjektadministrasjon
Totalentrepriser
Konkurranser
DAK / IT
Workshop
Boliger
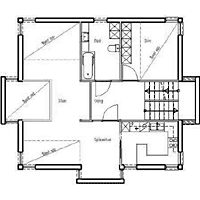
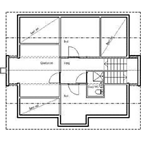
Storelva
Enebolig Storelva, Tromsų bruttoareal ca. 250 m². 2000